Le futur Cinéma VOX de la rue de Gaulle a retenu notre attention car il constituera un élément majeur de l’aménagement du centre ville. Les travaux de démolition ne sont pas encore engagés car les procédures prennent plus de temps que prévu, notamment le référé préventif destiné à se prémunir contre tout incident sur les propriétés voisines et l’agrément nécessaire des services archéologiques, le site étant sur l’emplacement des anciens remparts de la cité.
De plus les propriétaires ont choisi de faire appel à un architecte d’exécution différent de celui de conception ce qui justifie un travail de coordination. La réalisation ne devrait cependant pas demander plus de 18 mois car le bâtiment est constitué d’une structure métallique habillée ensuite d’un revêtement extérieur qui luis donnera son allure architecturale et d’un aménagement intérieur répondant aux exigences de salles de spectacle.
Si certains ont pu regretter de perdre les quelques modénatures art-déco, nous avons pu constater que l’ensemble est équilibré et s’intégrera bien dans le cadre de notre centre-ville, aussi bien côté rue de Gaulle que du côté rue d’Angivillers où se situera l’entrée; l’ouverture d’un passage entre le deux rues sera un plus pour la circulation des piétons.
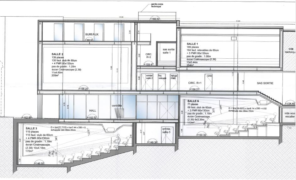
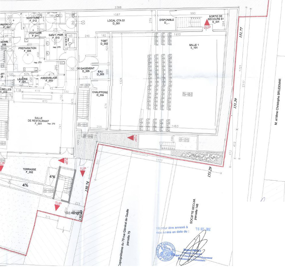
Voici les plans du permis de construire, tel qu’il a été autorisé.











Your article helped me a lot, is there any more related content? Thanks! https://www.binance.bh/register?ref=IHJUI7TF